Restaurant Case
MORI
A 300 SF Japanese Omakase — delivering a $150+ experience.
Project Overview
Time: 2023
Building size: 300 square feet
Address: 144 Sulivan St, NY 10012
Duration: 3 months
Cost: $120K
Menu Pricing: $150+ Per Person
Challenges
—Tiny Space (300 SF)
— Landmarked Building
— Tight Budget (120K)
— Messy Existing Conditions (See picture*)
Expectations
— As many seats as possible.
— High aesthetic value to match high menu price.
*Existing condition
Approaches
Designed and built as one process — not separate phases.
Layout, MEP, and construction details were aligned early, so every inch could perform with precision.
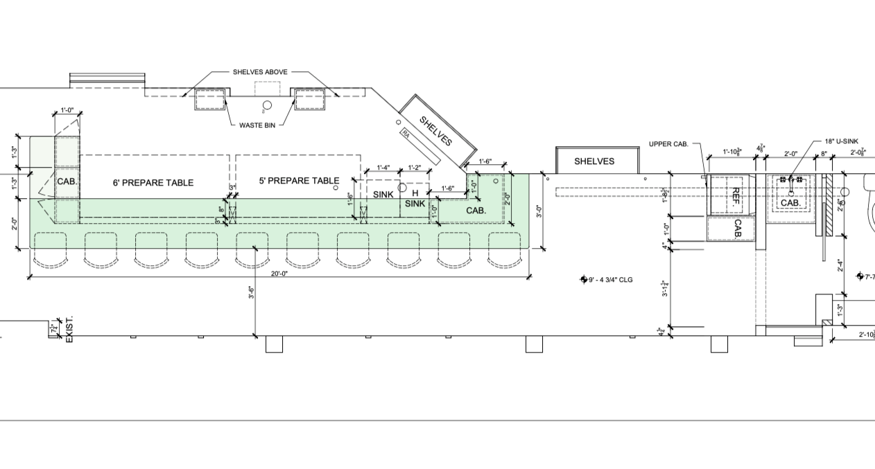
Thoughtful Layout
A carefully designed, highly efficient floor plan that supports smooth operations.
Execution
Millwork, seating, and lighting built to exact tolerances —
with continuous on-site coordination.
Customization
Maximize the unity of the space.
Lighting + Decor
Decor items and finishing surfaces that meets budget restraint but carry high aesthetic value.
The Process
From concept to construction — one continuous workflow.
Design decisions tested early
Construction coordinated in real time
No disconnect between drawing and execution
Design decisions tested early —
to ensure the layout works before construction begins.
Design
Permits (DOB/LPC/FDNY ) prepared and coordinated properly — to avoid delays and unexpected issues.
Permitting
Construction
Execution managed on site —
to ensure what’s built matches the design intent.
The Result
Seats 12 comfortably — while delivering a full omakase experience.
A small space that feels
intimate, controlled, and premium.
Expectation Achieved & Beyond
✔ Premium pricing ($100+ per person)
✔ Strong customer satisfaction (5-star Google reviews)
✔ Memorable dining experience.
Client Feedback
“The best in the business !
Very reliable and communicative
Always on top of everything”
— Solomon H. Mori Restaurant
What kind of project are you working on?
Tell us a bit about your project. We'll review your message and get back to you shortly.

